NGR 別府ホテル塒
- Info
- -, -
- Tags
Story
街の分散したホテルとして
このホテルには何もありません。 別府では旅行者の多くが温泉やお食事を滞在する宿で楽しみます。でも、別府ホテル塒(ねぐら)には温泉も、レストランもありません。 そのヒントは近年イタリアで進む、ある「宿の考え方」にありました。 イタリアでは、街全体をホテルの敷地と見立てて一連の体験を楽しむ、アルベルゴ・ディフーゾの考え方が大きく広がってきています。旅のメインが1つの宿で完結するのではなく、街に溢れる歴史や文化に積極的に触れることで、更に魅力的な体験となることに、多くの人が気づき始めていると言えます。 絶品グルメ、そして日本一の温泉数として知られる別府市で「おこもりステイ」はもったいない。別府ホテル塒(ねぐら)は、街全体をいわゆる「旅館」と見立て、その内の「宿泊」体験に特化できるデザインを企画しました。
Skeleton Looks
別府ホテル塒
Infill Looks
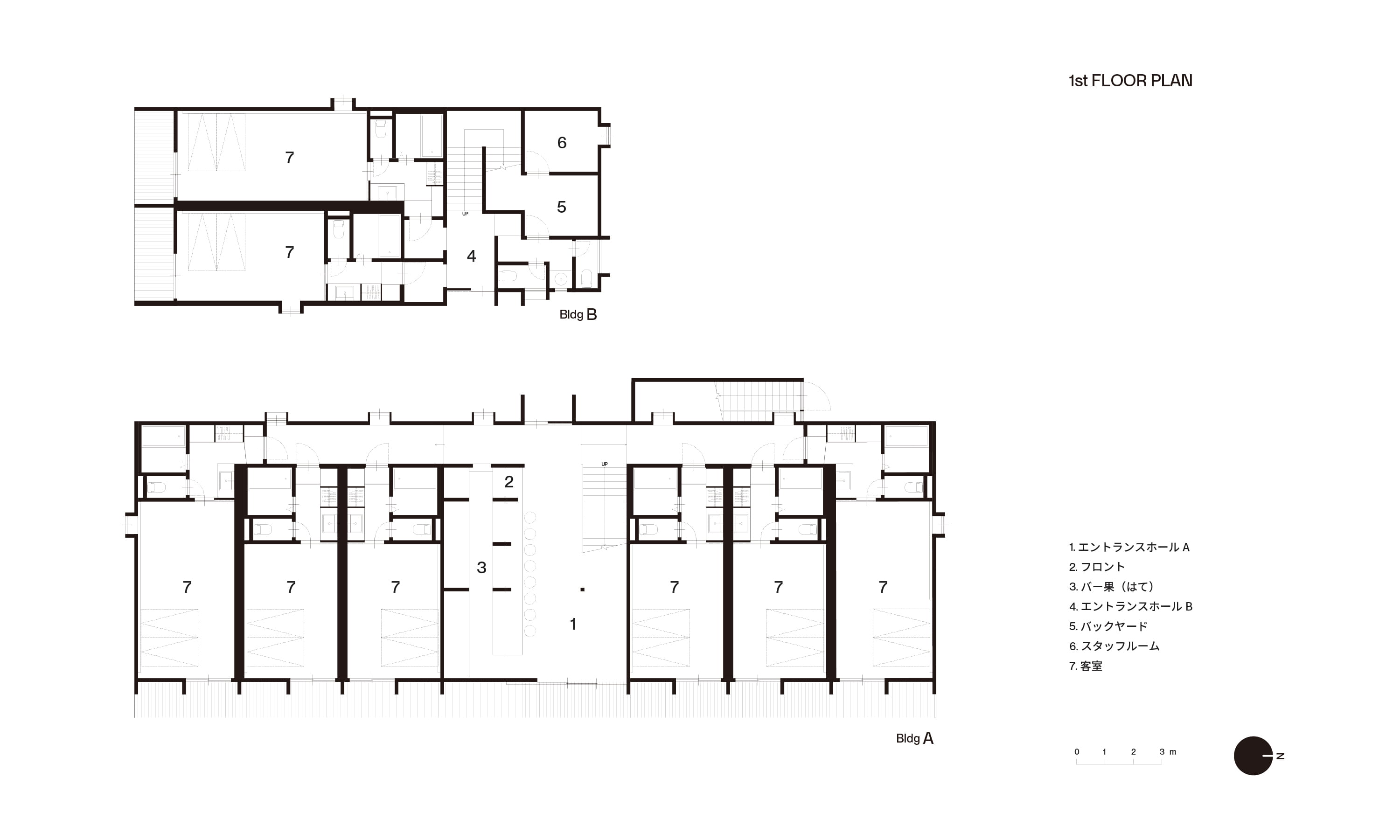
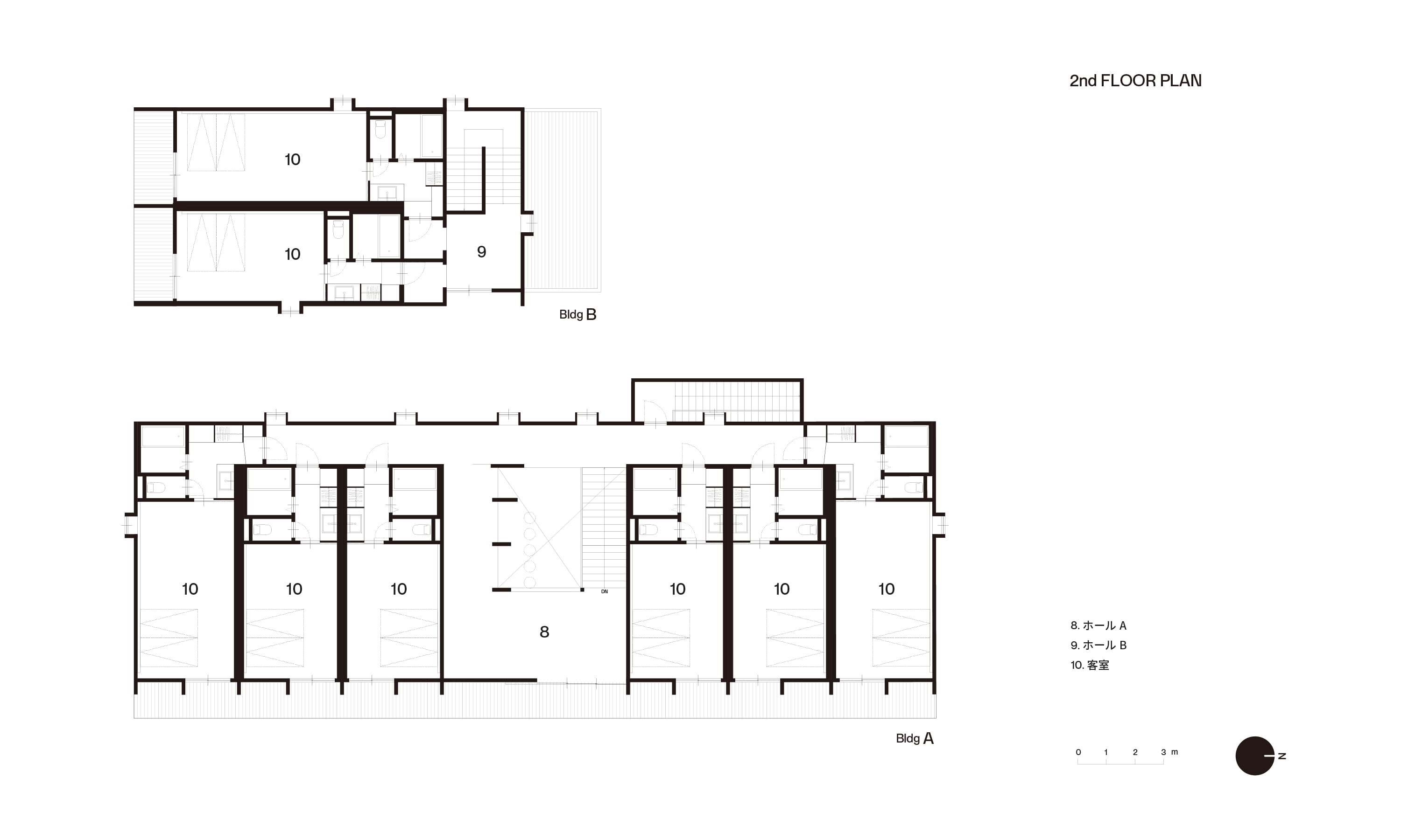
Blueprint
Magazine
View All MagazinesEvent
View All Events-
開催中
豊後高田市御玉 / 完成邸見学会
この度、お施主様のご厚意により、完成邸見学会を開催致します。 FDMの注文住宅から実際に見て・聞くことができる「暮らしのヒント」を、この機会に見学してみませんか? 是非お気軽にお問合せ下さい。
-
完成邸見学会 / 大分市田中町
この度、お施主様のご厚意により完成邸見学会を開催致します。 FDMの注文住宅から実際に見て・聞くことができる「暮らしのヒント」を、この機会に見学してみませんか? 是非お気軽にお問合せ下さい。
-
完成邸見学会 / 大分市賀来
この度、お施主様のご厚意により完成邸見学会を開催致します。 FDMの注文住宅から実際に見て・聞くことができる「暮らしのヒント」を、この機会に見学してみませんか? 是非お気軽にお問合せ下さい。