FDMR#10 「日常から、非日常へ」
- Info
- Yufuin,Oita, Nov,2025
- Tags
Story
日常から、非日常へ
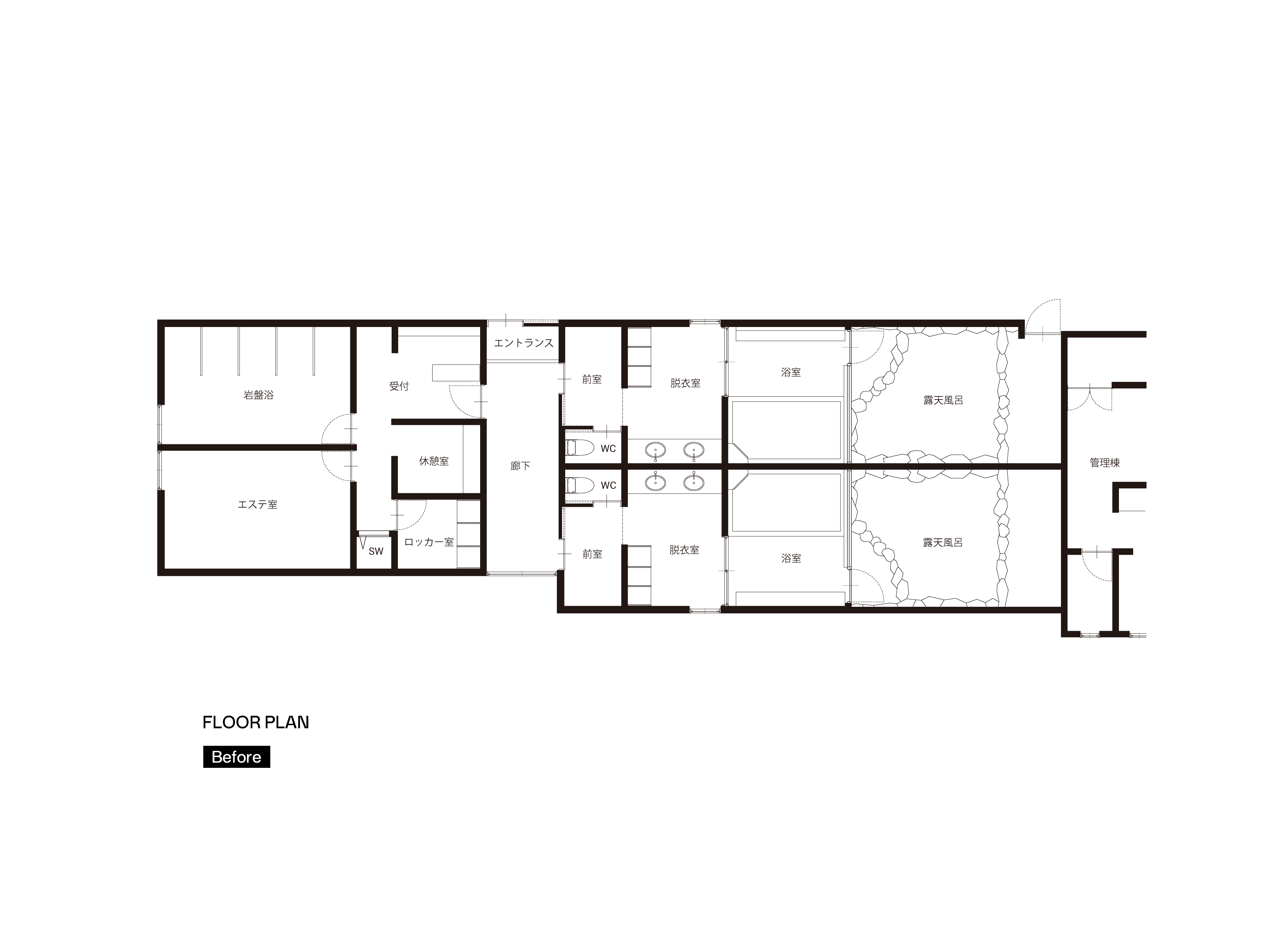
大分県中央部の由布岳の麓に広がる、全国有数の温泉地「湯布院」。観光客で賑わう由布院駅から車で5分、田園住居地域にひっそりと佇む宿泊施設が、新たな姿として誕生しました。
浴場施設からダイニング付き客室へのリノベーションは、既存の建物の良さを残しつつ、ゆったりとくつろげる宿へ。宿泊施設での体験を、何年経っても心に残る「非日常の体験」をテーマに計画を進めました。
Infill Looks
光が織りなす陰影の空間
障子の門戸を開けると、鈍い光沢のタイルの床がラウンジまで広がり、天井のルバーに点在する照明や内障子からの僅かな光が織りなす陰影の空間へと誘います。
職人の手仕事によるひび割れの土壁は、凛とした緊張感を漂わせ、なぐりの床は無常の時の変化を感じさせます。
壁や障子を彩る水墨絵師による由布院の気嵐を想起させるアートワークと相まって、非日常の静謐な場をつくりだしています。
Blueprint
- 所在地
- 大分県由布市
- 種別
- 宿泊施設
- 構造
- 木造(在来工法)
- 面積
- 143.38㎡
- 設計期間
- 2025.2-2025.6
- 施工期間
- 2025.6-2025.11
Magazine
View All MagazinesEvent
View All Events-
【ご好評につき増枠】完成邸見学会 / 大分市王子新町
この度、お施主様のご厚意により完成邸見学会を開催致します。 FDMの注文住宅から実際に見て・聞くことができる「暮らしのヒント」を、この機会に見学してみませんか? 是非お気軽にお問合せ下さい。
-
開催中
理想のマイホームを建てたい!FDMの「初めての家づくり相談会」開催
この度、マイホーム計画スタートの第一歩として、家づくりを考え始めたばかりの方にぴったりのイベントを開催致します。 何から始めてよいか全く分からない“家づくり”。FDMのスタッフに気軽に相談してみませんか??
-
開催中
中津市 / 入居者宅見学会
この度、お施主様のご厚意により入居者宅見学会を開催致します。 FDMの注文住宅から実際に見て・聞くことができる「暮らしのヒント」を、この機会に見学してみませんか? 是非お気軽にお問合せ下さい。