FDMR#06 「豊かさを修景する家」
- Info
- Akeno,Oita, March.2023
- Tags
Story
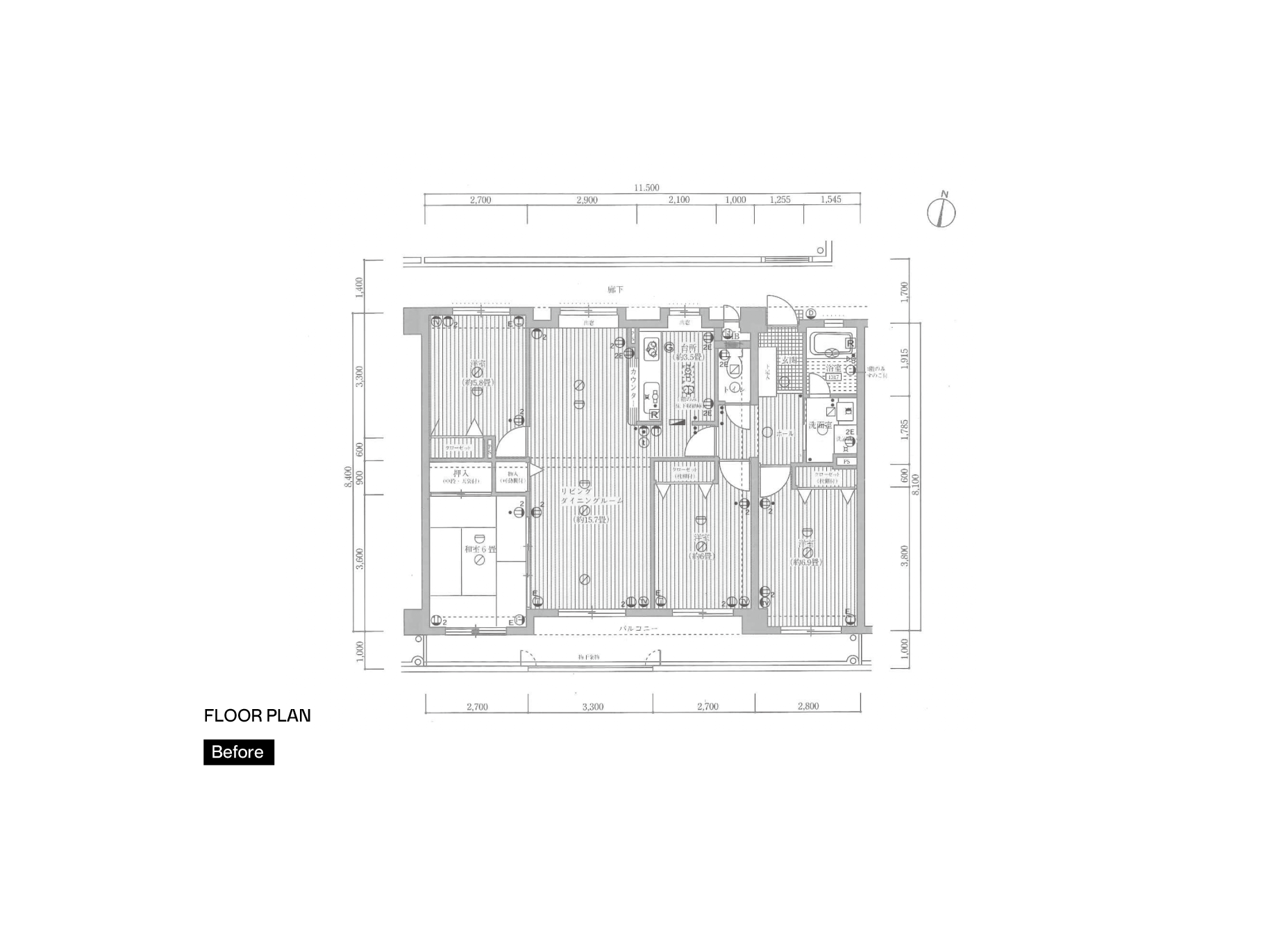
4LDKから2LDKへ、住まいのゆとりと機能性を取り戻す
大分市明野の伸びやかなロケーションが眼下に広がるパークサイドに建つ築26年のマンションの一室。90.36㎡の広い区画に施主のライフスタイルを落とし込むことからプランニングがスタートしました。
既存の4LDKの間取りは単に部屋数が多いだけで使いにくい。そこで、あえて部屋数を減らした2LDKとし、各部屋に余裕をもたせつつ、パントリー、ウォークインクローゼットやランドリースペースなど足りない機能を追加しながら、頭の中の理想の生活を具体的なかたちにしていきました。
室内にゆとりがでたきたことで、隣接する公園の伸びやかな雰囲気が住まいにも継承され、内部と外部の住環境のギャップを解消するリノベーションとなりました。
Infill Looks
スペースと素材と光が移ろう現代的な生活空間
室内の素材には、ナラ天然木突板の床、カウンター材には天然木の集成材、ランワン合板を壁のアクセントにするなど、経年変化を愉しめる素材を使用。強い光が差し込む南側のサッシ面には内障子を設け、素材と光が移ろう室内となっている。そして、床座を畳とするなど、機能的要件から和の要素を採用したことで、和とも洋ともつかない現代的な生活空間を実現している。
スペースについては、畳や書斎スペースを併用したオープンなLDKとし、主寝室は将来子供部屋を2室使用できるよう余裕をもたせる一方、水廻りなどの洗面やラドリースペースは必要最低限のスペースとしてメリハリのあるゾーニングとした。また、新たに追加したウォークインクローゼットやランドリースペースは浴室からスムーズな家事導線になっており、土間収納からランドリースペースにかけて風の流れを考慮した配置となっている。
Blueprint
- 所在地
- 大分市明野西
- 家族構成
- 夫婦+子ども1人
- 種別
- リノベーション(マンション区画)
- 竣工
- 2023年3月
- 費用
- 1,000~1,500万円
- 構造
- RC
- 規模
- ー
- 建築面積
- ー
- 延床面積
- 90.36㎡
- 設計期間
- 2022.09-2022.11
- 施工期間
- 2022.12-2022.02
Magazine
View All MagazinesEvent
View All Events-
【ご好評につき増枠】完成邸見学会 / 大分市王子新町
この度、お施主様のご厚意により完成邸見学会を開催致します。 FDMの注文住宅から実際に見て・聞くことができる「暮らしのヒント」を、この機会に見学してみませんか? 是非お気軽にお問合せ下さい。
-
開催中
理想のマイホームを建てたい!FDMの「初めての家づくり相談会」開催
この度、マイホーム計画スタートの第一歩として、家づくりを考え始めたばかりの方にぴったりのイベントを開催致します。 何から始めてよいか全く分からない“家づくり”。FDMのスタッフに気軽に相談してみませんか??
-
開催中
中津市 / 入居者宅見学会
この度、お施主様のご厚意により入居者宅見学会を開催致します。 FDMの注文住宅から実際に見て・聞くことができる「暮らしのヒント」を、この機会に見学してみませんか? 是非お気軽にお問合せ下さい。