FDMR#07 「表現するオフィス」
- Info
- Ohashi,Fukuoka, May.2023
- Tags
Story
企業のアイデンティティを体感する場としてのオフィス
福岡市内で不動産事業を展開されている企業のオフィス移転にともなう、リノベーションのお手伝いをさせていただきました。
新型コロナを契機に多様な働き方が実践されるようになり、オフィス空間への関心が高まりを見せる状況のなか、移転をきっかけにして、スタッフの作業効率や生産性を高められるような、時間や場所を自由に選択できるワーキングスペースを念頭にプランを進めて行きました。スタッフの働きやすさと併せて、訪問者に対してオフィスでの体験が直接コーポレートブランディングにつながるような、企業のアイデンティティを体感する場をデザインしています。
Infill Looks
多様性のある働き方を空間で表現
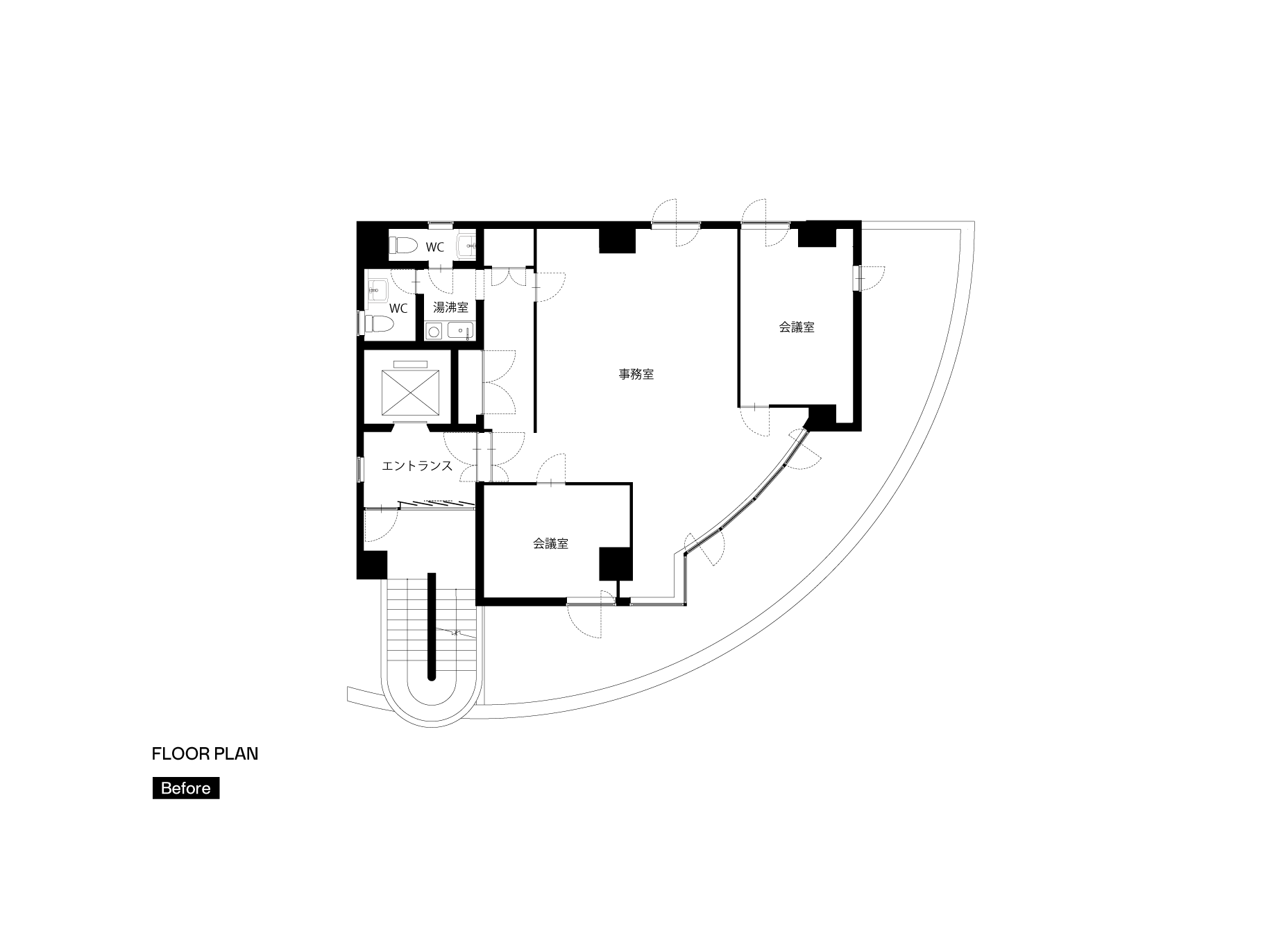
既存をフルスケルトンしたワンルーム空間に、入れ子状にミーテーングルームとCEOルームのボックスを挿入し、ボックスによってゆるくゾーニングられたスペースにワークスペースやギャラリーを配置。ワークスペースはリフレッシュエリアを中心にして、カフェのようなカウンター席、ダイニングを思わせるテーブル席が用意され、フリーアクセスでの利用を自然に誘導するようデザインされている。エントランスからギャラリーにかけては、コーポレートアイデンティティを表すゾーンとなっており、個室のボックスは外部からと内部からの2ウェイのアクセスが可能で、内部と外部のコミュニケーションの可変性に対応。エントランスのロゴのブルーを印象づけるように室内はモノトーンとし、アクセントのラワン合板の木目と各所に置かれたグリーンが空間に居心地と深みを与えている。
Blueprint
- 所在地
- 福岡市南区大橋
- 種別
- リノベーション(オフィス)
- 竣工
- 2023年5月
- 構造
- RC
- 規模
- ー
- 建築面積
- ー
- 延床面積
- 82.0㎡
- 設計期間
- 2023.02-2023.04
- 施工期間
- 2023.04-2023.5
Magazine
View All MagazinesEvent
View All Events-
【ご好評につき増枠】完成邸見学会 / 大分市王子新町
この度、お施主様のご厚意により完成邸見学会を開催致します。 FDMの注文住宅から実際に見て・聞くことができる「暮らしのヒント」を、この機会に見学してみませんか? 是非お気軽にお問合せ下さい。
-
開催中
理想のマイホームを建てたい!FDMの「初めての家づくり相談会」開催
この度、マイホーム計画スタートの第一歩として、家づくりを考え始めたばかりの方にぴったりのイベントを開催致します。 何から始めてよいか全く分からない“家づくり”。FDMのスタッフに気軽に相談してみませんか??
-
開催中
中津市 / 入居者宅見学会
この度、お施主様のご厚意により入居者宅見学会を開催致します。 FDMの注文住宅から実際に見て・聞くことができる「暮らしのヒント」を、この機会に見学してみませんか? 是非お気軽にお問合せ下さい。