ACV TW-01 (AMG-1)
- Info
- Oita city,Oita, Dec.2023
- Tags
Story
家族の成長に寄り添い、ゆとりある暮らしを叶える家。
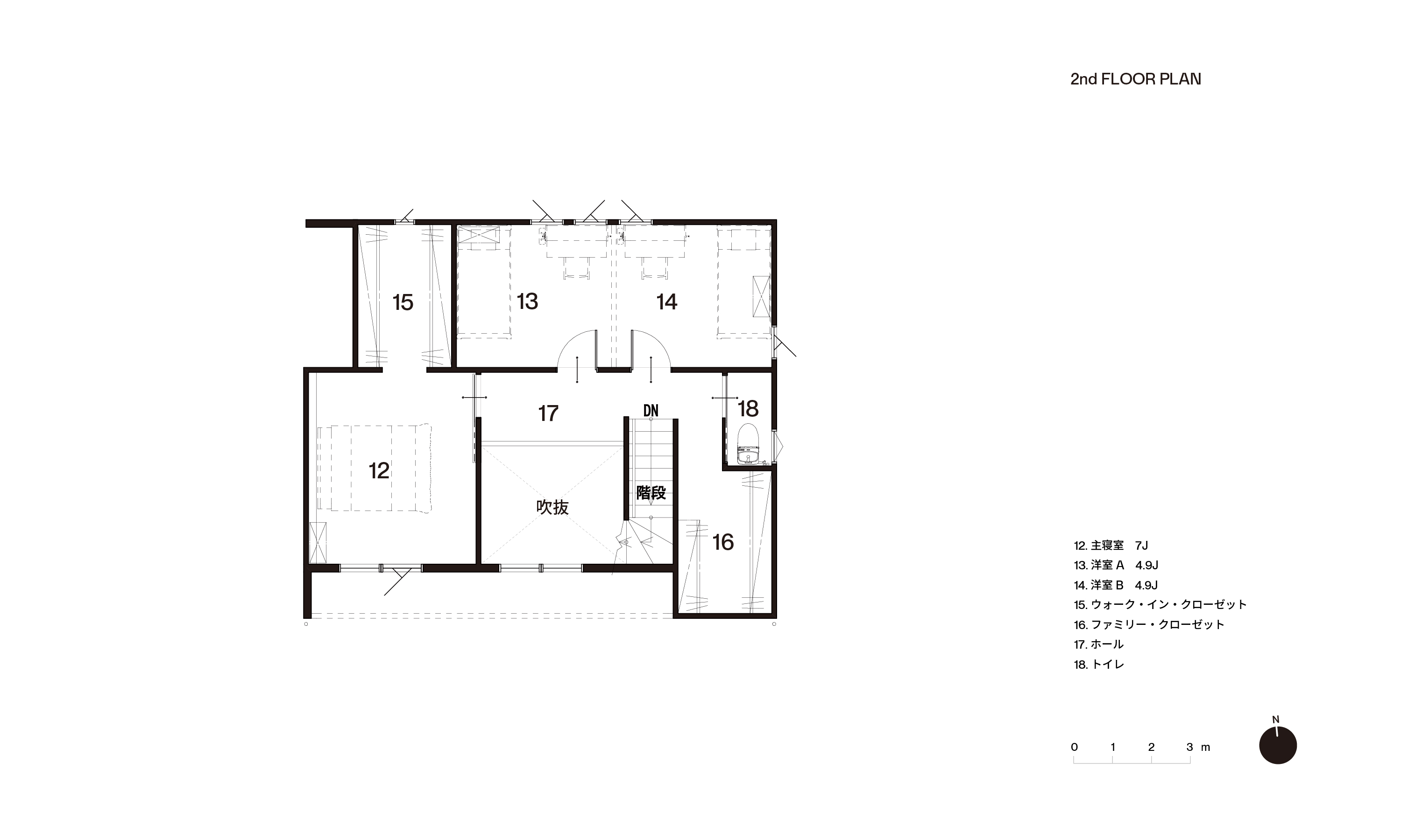
吹抜けから降り注ぐ暖かな日差しが、家族の食卓を優しく包んでくれます。2階は、ホールを中心に各洋室へ繋がるシンプルな間取り。約10畳の広めの子供部屋は、後付けで間仕切りを配置すれば2部屋にすることも可能。お子様の成長に合わせて自由に空間を活用することができます。大容量の収納空間はもちろん、各部屋の用途に合わせてゆとりある空間を確保しています。
Skeleton Looks
FDM✖️Original Botanica
家づくりにおいて、植物と建物の調和が生活を豊かにする要素。
外構工事や植栽のプロジェクトを手がけ、植物と建築の美しい融合を提案するオリジナルボタニカとのコラボレーションにより、土地を有効活用した無駄のない配置、都会と自然が調和した、理想の住まいが実現しました。
Infill Looks
吹き抜けのある暮らし
Online Room Tour
Blueprint
- 耐震等級
- 3 (許容応力度計算による)
- 耐風等級
- 2
- UA値(外皮平均熱貫流率)
- 0.56
- ZEH(ネット・ゼロ・エネルギーハウス)
- 適合
- 断熱性能
- 等級5|ZEH水準 ※断熱性能等級は当社の2021年平均値より算出しています。
- エネルギー消費性能
- 等級6|一次エネルギー消費量の著しい削減のための対策が講じられている
住宅の性能について
ツーバイフォー工法
ツーバイフォー工法は、地震の力をバランスよく分散させる「六面体構造」を基本とする工法です。地震の力を1点に集中させず、家全体にバランスよく分散させることで、建物の変形を防ぐことができます。住宅を建設する際も、釘の色やピッチなどでしっかりと確認ができる点もこの工法の特徴です。
耐震等級3の家
FDMでは最高の備えである「構造計算(許容応力度計算)による耐震等級3」を全ての住宅に義務付けています。構造計算とは、地震や災害に対して、変形や倒壊しないかを科学的に検証する計算のことで、建築基準法の定めでは、ほとんど全ての木造住宅は構造計算を行わなくてよいことになっています。FDMは耐震性と耐久性を持つ「永く続く器」をつくるために、全ての住宅で構造計算を行っています。
許容応力度計算による構造計算とは?
耐震等級2以上を確保するには「性能表示計算」か「許容応力度計算」による構造計算が必要になります。
ではこの2つの違いとはなんでしょう。
耐震等級3で同じような家を設計する場合、性能表示計算と許容応力度計算では、詳細な作業を必要とする許容応力度計算の方がたくさんの耐力壁を必要とする計算結果が出ます。
性能表示計算で建てた耐震等級3が、許容応力度計算と同じ量の耐力壁を必要としているなら問題は無いと言えます。
しかし実際は、耐力壁一つだけを見ても、許容応力度計算よりも、常に少なくなるのが性能表示計算の現状です。
つまり、同じ耐震等級3であっても、性能表示計算で建てた家よりも許容応力度計算を行った家の方が地震に強いのです。

断熱等性能等級とは?
断熱等性能等級とは、建物や住宅の断熱性能を評価する基準のことです。等級が高いほど、外気の温度変化や風の影響を受けにくくなり、室内の快適さを維持しやすくなります。また、高い等級の建物はエネルギー効率も良くなり、暖房や冷房の使用量を減らすことができます。
断熱等級は、無断熱の等級1~最高ランクの等級7まで、UA値によって7段階に分類されます。そのうち等級5~7は、2022年に「上位等級」として創設されました。
断熱等級が高い住まいは消費電力が少ないため、国は地球温暖化対策の取り組みとして2025年までにすべての新築戸建て住宅において断熱等級4以上を義務化することを目指しています。

一次エネルギー消費量とは?
一次エネルギー消費量の性能とは、建物や住宅が使用するエネルギーの量を評価する指標です。一次エネルギーは自然から取り出したエネルギーであり、例えば石炭や石油、天然ガスなどが含まれます。一次エネルギー消費量の性能が低いほど、建物がエネルギーを効率的に使用していることを示します。つまり、同じ快適さや機能を提供するために必要なエネルギー量が少なくなるのです。建物や住宅が低い一次エネルギー消費量の性能を持つと、環境への負荷を軽減できるだけでなく、エネルギー費用も節約できます。一次エネルギー消費量の性能評価は、持続可能な建築やエネルギー効率の向上に貢献します。
- 所在地
- 大分県大分市
- 延床面積
- 101.22㎡(30.62坪)
- 構造
- ツーバイフォー工法
- 規模
- 地上2階
- 家族構成
- 夫婦+子ども2人 4人家族を想定
- 設備
- システムキッチン(オール電化)、ユニットバス、洗面化粧台、他
- 設計期間
- 2023.06-2023.07
- 施工期間
- 2023.08-2024.1
- 建物完成年月
- 2024年1月
- 施工
- FDM株式会社
Magazine
View All MagazinesEvent
View All Events-
開催中
完成邸見学会 / 大分市王子西町
この度、お施主様のご厚意により、完成邸見学会を開催致します。 FDMの注文住宅から実際に見て・聞くことができる「暮らしのヒント」を、この機会に見学してみませんか? 是非お気軽にお問合せ下さい。
-
完成邸見学会 / 由布市挾間町古野
この度、お施主様のご厚意により、完成邸見学会を開催致します。 FDMの注文住宅から実際に見て・聞くことができる「暮らしのヒント」を、この機会に見学してみませんか? 是非お気軽にお問合せ下さい。
-
開催中
中津市東浜 / 販売型モデルハウス好評公開中
中津市東浜エリアにて建築中の分譲住宅全3棟がいよいよグランドオープン!! FDMの住宅のプロがご提案する「特別な一棟」を、この機会に是非ご覧ください。