ACV HS-01 (TKB-2)
- Info
- ,
- Tags
Story
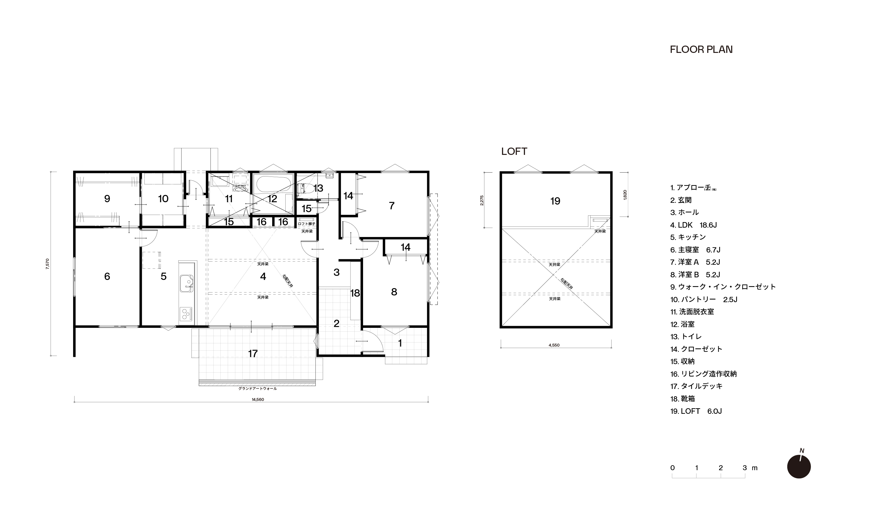
ロフトのある暮らし
勾配天井の解放感あるリビングを望む、まるで秘密基地のようなロフトは、ご夫婦の趣味スペースやゲストルームとして活躍間違いなし。
寝室と洗面脱衣室をつなぐ広々ウォークインクロ―ゼットとパントリーは回遊性も持たせた家事に便利な動線をデザイン。また、各こども部屋にもしっかりと収納スペースを確保しています。
「平屋」の空間とメリットを余すことなく最大限に活用した住まい。
日々の暮らしに+αのこと、楽しみませんか?

Skeleton Looks
半屋外を楽しむテラス
リビングと繋がる半屋外のテラスが心地良い。
片流れ屋根からの深い庇と目隠し壁(グランドアートウォール)によるプライバシーの確保された光と風がちょうど良い空間。
Infill Looks
暮らしにゆとりと豊かさを
ロフトのある平屋
リビング・ダイニングには勾配天井を採用。開放感のある明るい空間をデザインし、さらに勾配天井の一番高い部分にはロフト空間を設置。寝室、ウォークインクローゼット、パントリー、洗面脱衣室、浴室まで、ウォークスルー可能かつ回遊性のある動線になっています。
Online Room Tour
Blueprint
- 耐震等級
- 3 (許容応力度計算による)
- 耐風等級
- 2
- UA値(外皮平均熱貫流率)
- 0.56
- ηA値(冷房期の平均日射熱取得率)
- ZEH(ネット・ゼロ・エネルギーハウス)
- 適合
- 断熱性能
- 等級5|ZEH水準 ※断熱性能等級は当社の2021年平均値より算出しています。
- エネルギー消費性能
- 等級6|一次エネルギー消費量の著しい削減のための対策が講じられている
住宅の性能について
ツーバイフォー工法
ツーバイフォー工法は、地震の力をバランスよく分散させる「六面体構造」を基本とする工法です。地震の力を1点に集中させず、家全体にバランスよく分散させることで、建物の変形を防ぐことができます。住宅を建設する際も、釘の色やピッチなどでしっかりと確認ができる点もこの工法の特徴です。
耐震等級3の家
FDMでは最高の備えである「構造計算(許容応力度計算)による耐震等級3」を全ての住宅に義務付けています。構造計算とは、地震や災害に対して、変形や倒壊しないかを科学的に検証する計算のことで、建築基準法の定めでは、ほとんど全ての木造住宅は構造計算を行わなくてよいことになっています。FDMは耐震性と耐久性を持つ「永く続く器」をつくるために、全ての住宅で構造計算を行っています。
許容応力度計算による構造計算とは?
耐震等級2以上を確保するには「性能表示計算」か「許容応力度計算」による構造計算が必要になります。
ではこの2つの違いとはなんでしょう。
耐震等級3で同じような家を設計する場合、性能表示計算と許容応力度計算では、詳細な作業を必要とする許容応力度計算の方がたくさんの耐力壁を必要とする計算結果が出ます。
性能表示計算で建てた耐震等級3が、許容応力度計算と同じ量の耐力壁を必要としているなら問題は無いと言えます。
しかし実際は、耐力壁一つだけを見ても、許容応力度計算よりも、常に少なくなるのが性能表示計算の現状です。
つまり、同じ耐震等級3であっても、性能表示計算で建てた家よりも許容応力度計算を行った家の方が地震に強いのです。

断熱等性能等級とは?
断熱等性能等級とは、建物や住宅の断熱性能を評価する基準のことです。等級が高いほど、外気の温度変化や風の影響を受けにくくなり、室内の快適さを維持しやすくなります。また、高い等級の建物はエネルギー効率も良くなり、暖房や冷房の使用量を減らすことができます。
断熱等級は、無断熱の等級1~最高ランクの等級7まで、UA値によって7段階に分類されます。そのうち等級5~7は、2022年に「上位等級」として創設されました。
断熱等級が高い住まいは消費電力が少ないため、国は地球温暖化対策の取り組みとして2025年までにすべての新築戸建て住宅において断熱等級4以上を義務化することを目指しています。

一次エネルギー消費量とは?
一次エネルギー消費量の性能とは、建物や住宅が使用するエネルギーの量を評価する指標です。一次エネルギーは自然から取り出したエネルギーであり、例えば石炭や石油、天然ガスなどが含まれます。一次エネルギー消費量の性能が低いほど、建物がエネルギーを効率的に使用していることを示します。つまり、同じ快適さや機能を提供するために必要なエネルギー量が少なくなるのです。建物や住宅が低い一次エネルギー消費量の性能を持つと、環境への負荷を軽減できるだけでなく、エネルギー費用も節約できます。一次エネルギー消費量の性能評価は、持続可能な建築やエネルギー効率の向上に貢献します。
- 販売種別
- 分譲住宅
- 所在地
- 大分県大分市角子原
- 延床面積
- 104.03m²
- 構造
- ツーバイフォー工法
- 規模
- 地上1階
- 家族構成
- 夫婦+子ども2人 4人家族を想定
- 設備
- システムキッチン(オール電化)、ユニットバス、洗面化粧台、太陽光発電パネル他
- 設計期間
- 2022.05-2022.06
- 施工期間
- 2022.06-2022.11
- 建物完成年月
- 2022年11月
- 施工
- FDM株式会社
Magazine
View All MagazinesEvent
View All Events-
【ご好評につき増枠】完成邸見学会 / 大分市王子新町
この度、お施主様のご厚意により完成邸見学会を開催致します。 FDMの注文住宅から実際に見て・聞くことができる「暮らしのヒント」を、この機会に見学してみませんか? 是非お気軽にお問合せ下さい。
-
開催中
理想のマイホームを建てたい!FDMの「初めての家づくり相談会」開催
この度、マイホーム計画スタートの第一歩として、家づくりを考え始めたばかりの方にぴったりのイベントを開催致します。 何から始めてよいか全く分からない“家づくり”。FDMのスタッフに気軽に相談してみませんか??
-
開催中
中津市 / 入居者宅見学会
この度、お施主様のご厚意により入居者宅見学会を開催致します。 FDMの注文住宅から実際に見て・聞くことができる「暮らしのヒント」を、この機会に見学してみませんか? 是非お気軽にお問合せ下さい。