ACV HN-07 (FOR2-9)
- Info
- Bungotakada city,Oita, Jun.2025
- Tags
Story
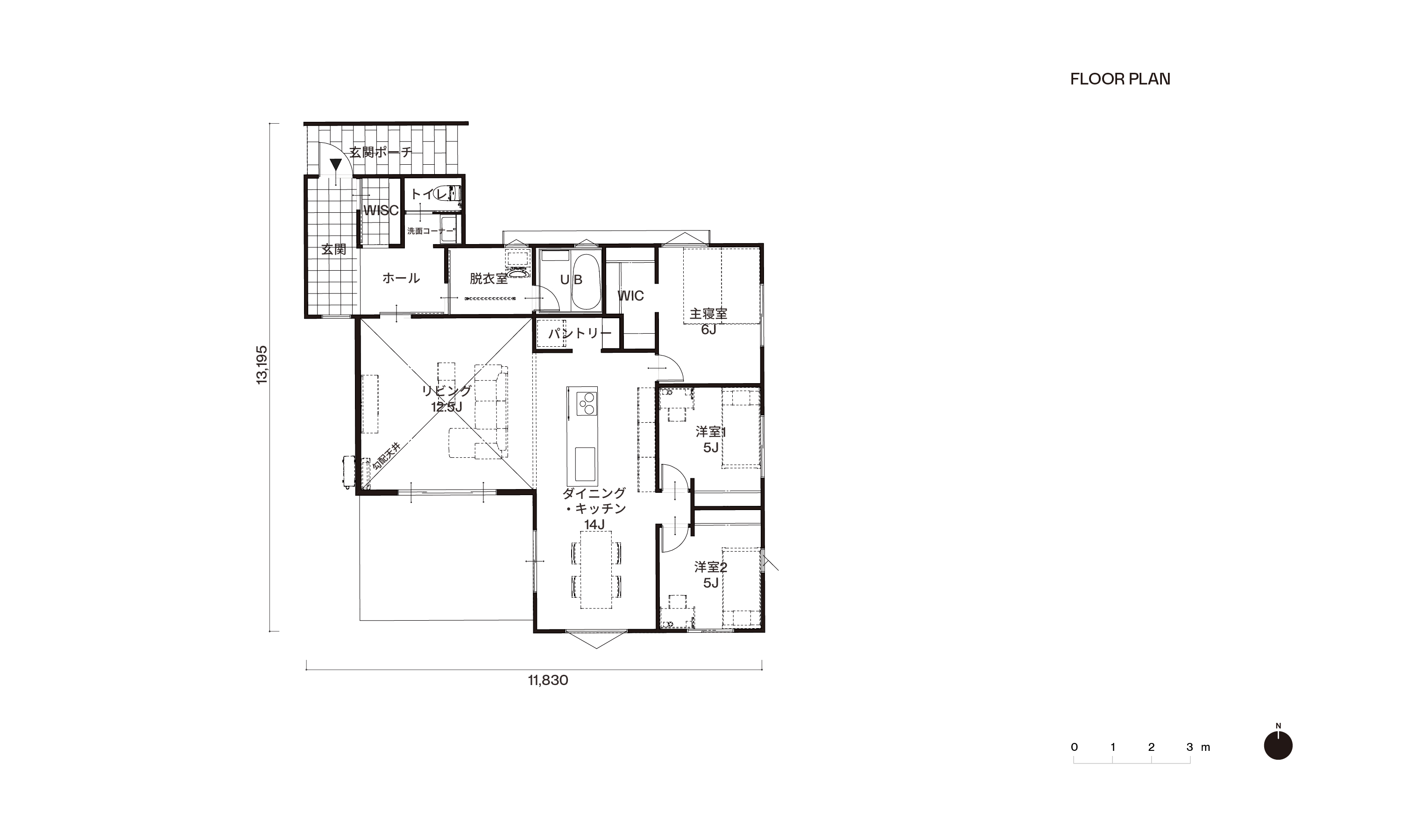
家族を繋ぐ、ゆとりある玄関を備えた家。
ゆとりのある玄関ポーチから扉を開けて広がる玄関は、ホールを中心にLDK、水回り、寝室へと広がる動線に。開放感のある勾配天井のLDKや面するテラスと、家の中でも外でも家族の時間を楽しむことができます。キッチン横にはパントリー、水回りへと繋がる動線にはファミリークローゼットなど、充実した収納空間を確保。玄関から広がる動線が、家族一人ひとりの生活を優しく繋ぐ住まいです。
Skeleton Looks
タイルデッキを囲むL字型の平屋
LDKと庭をシームレスにつなぐ広々としたタイルデッキ
Infill Looks
お客様の声を反映した、暮らし便利な間取り
もう一度家を建てるなら?をテーマに、FDMで建築されたお客様の声を集め、形にしたFDM Maman(ママン)プロジェクト。この平屋の間取りはMamanプロジェクトからフィードバックされています。アイランドキッチンを採用することで自由度の高い家事動線を確保。また、リビングとダイニングからはテラスデッキ越しにシームレスに庭へつながります。
Blueprint
- 耐震等級
- 3 (許容応力度計算による)
- 耐風等級
- 2
- UA値(外皮平均熱貫流率)
- 0.47
- ηAC値(冷房期の平均日射熱取得率)
- 1.5
- ZEH(ネット・ゼロ・エネルギーハウス)
- 適合
- 断熱性能等級
- ★★★★★☆☆
- 等級5|ZEH水準
- エネルギー消費性能(再エネ設備なし)
- ★★★☆
- 削減率24%
住宅の性能について
ツーバイフォー工法
ツーバイフォー工法は、地震の力をバランスよく分散させる「六面体構造」を基本とする工法です。地震の力を1点に集中させず、家全体にバランスよく分散させることで、建物の変形を防ぐことができます。住宅を建設する際も、釘の色やピッチなどでしっかりと確認ができる点もこの工法の特徴です。
耐震等級3の家
FDMでは最高の備えである「構造計算(許容応力度計算)による耐震等級3」を全ての住宅に義務付けています。構造計算とは、地震や災害に対して、変形や倒壊しないかを科学的に検証する計算のことで、建築基準法の定めでは、ほとんど全ての木造住宅は構造計算を行わなくてよいことになっています。FDMは耐震性と耐久性を持つ「永く続く器」をつくるために、全ての住宅で構造計算を行っています。
許容応力度計算による構造計算とは?
耐震等級2以上を確保するには「性能表示計算」か「許容応力度計算」による構造計算が必要になります。
ではこの2つの違いとはなんでしょう。
耐震等級3で同じような家を設計する場合、性能表示計算と許容応力度計算では、詳細な作業を必要とする許容応力度計算の方がたくさんの耐力壁を必要とする計算結果が出ます。
性能表示計算で建てた耐震等級3が、許容応力度計算と同じ量の耐力壁を必要としているなら問題は無いと言えます。
しかし実際は、耐力壁一つだけを見ても、許容応力度計算よりも、常に少なくなるのが性能表示計算の現状です。
つまり、同じ耐震等級3であっても、性能表示計算で建てた家よりも許容応力度計算を行った家の方が地震に強いのです。

断熱等性能等級とは?
断熱等性能等級とは、建物や住宅の断熱性能を評価する基準のことです。等級が高いほど、外気の温度変化や風の影響を受けにくくなり、室内の快適さを維持しやすくなります。また、高い等級の建物はエネルギー効率も良くなり、暖房や冷房の使用量を減らすことができます。
断熱等級は、無断熱の等級1~最高ランクの等級7まで、UA値によって7段階に分類されます。そのうち等級5~7は、2022年に「上位等級」として創設されました。
断熱等級が高い住まいは消費電力が少ないため、国は地球温暖化対策の取り組みとして2025年までにすべての新築戸建て住宅において断熱等級4以上を義務化することを目指しています。

一次エネルギー消費量とは?
一次エネルギー消費量の性能とは、建物や住宅が使用するエネルギーの量を評価する指標です。一次エネルギーは自然から取り出したエネルギーであり、例えば石炭や石油、天然ガスなどが含まれます。一次エネルギー消費量の性能が低いほど、建物がエネルギーを効率的に使用していることを示します。つまり、同じ快適さや機能を提供するために必要なエネルギー量が少なくなるのです。建物や住宅が低い一次エネルギー消費量の性能を持つと、環境への負荷を軽減できるだけでなく、エネルギー費用も節約できます。一次エネルギー消費量の性能評価は、持続可能な建築やエネルギー効率の向上に貢献します。
- 間取り
- 3LDK
- 所在地
- 大分県豊後高田市
- 延床面積
- 98.12㎡(29.68坪)
- 構造
- ツーバイフォー工法
- 規模
- 地上1階
- 家族構成
- 夫婦+子ども2人 4人家族を想定
- 設備
- システムキッチン(オール電化)、ユニットバス、洗面化粧台、太陽光パネル他
- 設計期間
- 2024.8-2024.9
- 施工期間
- 2024.9-2025.1
- 建物完成年月
- 2025年1月
- 施工
- FDM株式会社
Magazine
View All MagazinesEvent
View All Events-
完成邸見学会 / 豊前市今市
この度、お施主様のご厚意により、完成邸見学会を開催致します。 FDMの注文住宅から実際に見て・聞くことができる「暮らしのヒント」を、この機会に見学してみませんか? 是非お気軽にお問合せ下さい。
-
開催中
中津市東浜 / 分譲住宅全3棟GRAND OPEN!!
中津市東浜エリアにて建築中の分譲住宅全3棟がいよいよグランドオープン!! FDMの住宅のプロがご提案する「特別な一棟」を、この機会に是非ご覧ください。
-
開催中
理想のマイホームを建てたい!FDMの「初めての家づくり相談会」開催
この度、マイホーム計画スタートの第一歩として、家づくりを考え始めたばかりの方にぴったりのイベントを開催致します。 何から始めてよいか全く分からない“家づくり”。FDMのスタッフに気軽に相談してみませんか??