FDMB Apartment #06
- Info
- Hakozaki,Higashi-ku,Fukuoka-city,Fukuoka, Nov.2023
- Tags
Skeleton Looks
MODERN PALAZZO 箱崎駅前
Infill Looks
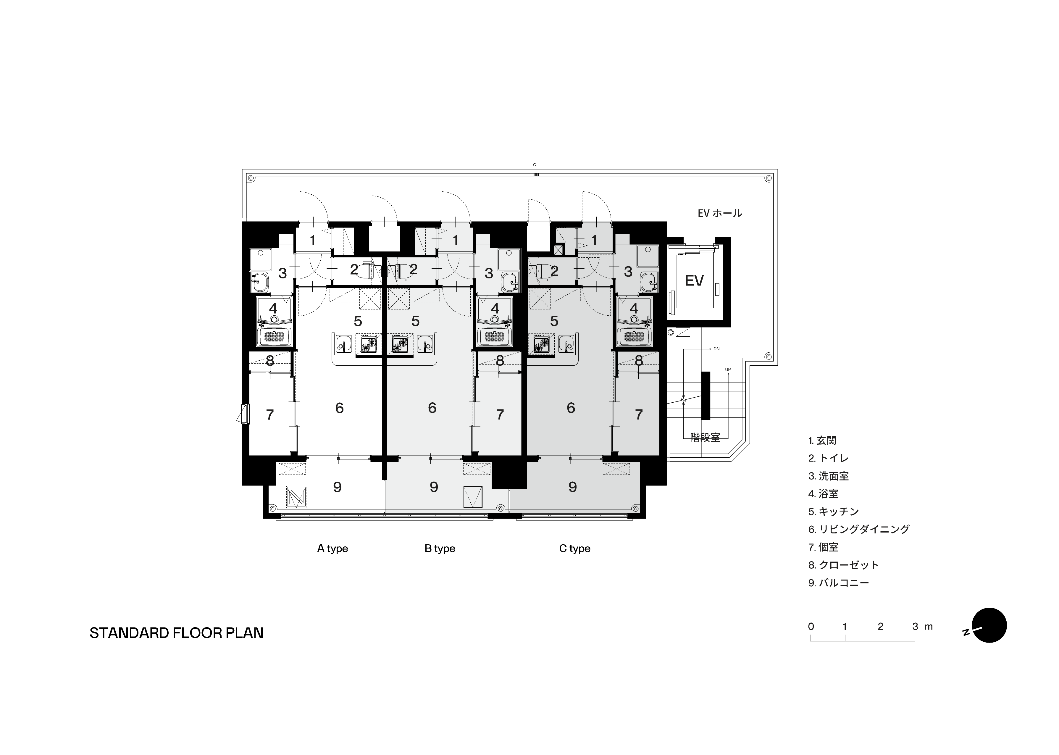
Blueprint
- 所在地
- 福岡県福岡市東区箱崎三丁目2番5
- 規模
- 鉄筋コンクリート建 13階建
- 用途
- 3F〜13F 共同住宅 2F テナント
- 施工
- FDM Inc.
- 竣工
- 2023年11月
Magazine
View All MagazinesEvent
View All Events-
【ご好評につき増枠】完成邸見学会 / 大分市王子新町
この度、お施主様のご厚意により完成邸見学会を開催致します。 FDMの注文住宅から実際に見て・聞くことができる「暮らしのヒント」を、この機会に見学してみませんか? 是非お気軽にお問合せ下さい。
-
開催中
理想のマイホームを建てたい!FDMの「初めての家づくり相談会」開催
この度、マイホーム計画スタートの第一歩として、家づくりを考え始めたばかりの方にぴったりのイベントを開催致します。 何から始めてよいか全く分からない“家づくり”。FDMのスタッフに気軽に相談してみませんか??
-
開催中
中津市 / 入居者宅見学会
この度、お施主様のご厚意により入居者宅見学会を開催致します。 FDMの注文住宅から実際に見て・聞くことができる「暮らしのヒント」を、この機会に見学してみませんか? 是非お気軽にお問合せ下さい。