中津市 東浜 HIG-1
- Info
- Higashihama,Nakatsu city,Oita, Mar.2026
- Tags
Story
ライフスタイルに合わせた空間活用を叶える住まい
勾配天井のリビングダイニングで開放感のある住まい。リビングに面したテラスはDIYやバーベキューなど充実したお家時間を叶えます。玄関からの動線は、共有空間へ繋がる来客導線と、シューズインクローゼット、ファミリークローゼットと一直線に繋がる生活動線とすることで、プライベートに配慮するだけでなく、外出や帰宅後の作業もスムーズ。ライフスタイルに合わせた空間活用を可能にします。
好評分譲中
2026年3月完成
販売価格(税込)
3,370万円(建物本体+外構)
場所
大分県中津市東浜
Reserve
来場予約
こちらは来場予約フォームです。必要事項をご入力の上、送信してください。内容を確認の上、担当者より折り返しご連絡させていただきます。
※当日のご予約はお電話のみの受付となっております。 FDMホーム中津店 0120-161-406
早期契約特典 その1
『内装カラーセレクト』
もっと自分らしいスタイルに。
分譲住宅でも早期契約ならコーディネートが楽しめます。
ご注文いただいた期間によりコーディネートきる箇所は変わります。
<東浜 分譲住宅 HIG-1 typeの場合>
・リビングドア:11月14日まで
・ユニットバス:11月18日まで
・床材(フローリング/クッションフロア):12月6日まで
・キッチン:2026年1月24日まで
・洗面化粧台:2026年2月7日まで
・壁紙(クロス):2026年2月12日まで
※商品は当社指定メーカーのみとなります。また内容によって有料になる場合があります。なお、変更可能箇所・期間は目安となり、物件の工事進捗状況により変わることがあります。
詳しくはお気軽にスタッフへお問い合わせください。
※画像は全てイメージです。販売中の物件とは異なります。
早期契約特典 その2
『家具・家電 総額50万円分』
プレゼント
大切な家具選びはインテリアコーディネーターにお任せ!
住宅のプロがお家のテイストや好みにぴったりな家具をご提案します。
※2025年12月31日までにご成約いただいた方が対象となります。
商品は当社指定メーカーよりお選び頂けます。
詳しくはお気軽にスタッフへお問い合わせください。
※画像は全てイメージです。販売中の物件とは異なります。
Skeleton Looks
SIMPLE MODERN STYLE
Infill Looks
coming soon
Blueprint
- 耐震等級
- 3
- 耐風等級
- 2
- UA値(外皮平均熱貫流率)
- ηAC値(冷房期の平均日射熱取得率)
- ZEH(ネット・ゼロ・エネルギーハウス)
- 適合
- 断熱性能
- エネルギー消費性能
- 再エネなし 削減率 % BEI値
建築物省エネ法に基づく建築物の省エネ性能の評価書
第3者評価 BELS
建築物省エネルギー性能表示制度
住宅の性能について
ツーバイフォー工法
ツーバイフォー工法は、地震の力をバランスよく分散させる「六面体構造」を基本とする工法です。地震の力を1点に集中させず、家全体にバランスよく分散させることで、建物の変形を防ぐことができます。住宅を建設する際も、釘の色やピッチなどでしっかりと確認ができる点もこの工法の特徴です。
耐震等級3の家
FDMでは最高の備えである「構造計算(許容応力度計算)による耐震等級3」を全ての住宅に義務付けています。構造計算とは、地震や災害に対して、変形や倒壊しないかを科学的に検証する計算のことで、建築基準法の定めでは、ほとんど全ての木造住宅は構造計算を行わなくてよいことになっています。FDMは耐震性と耐久性を持つ「永く続く器」をつくるために、全ての住宅で構造計算を行っています。
許容応力度計算による構造計算とは?
耐震等級2以上を確保するには「性能表示計算」か「許容応力度計算」による構造計算が必要になります。
ではこの2つの違いとはなんでしょう。
耐震等級3で同じような家を設計する場合、性能表示計算と許容応力度計算では、詳細な作業を必要とする許容応力度計算の方がたくさんの耐力壁を必要とする計算結果が出ます。
性能表示計算で建てた耐震等級3が、許容応力度計算と同じ量の耐力壁を必要としているなら問題は無いと言えます。
しかし実際は、耐力壁一つだけを見ても、許容応力度計算よりも、常に少なくなるのが性能表示計算の現状です。
つまり、同じ耐震等級3であっても、性能表示計算で建てた家よりも許容応力度計算を行った家の方が地震に強いのです。

断熱等性能等級とは?
断熱等性能等級とは、建物や住宅の断熱性能を評価する基準のことです。等級が高いほど、外気の温度変化や風の影響を受けにくくなり、室内の快適さを維持しやすくなります。また、高い等級の建物はエネルギー効率も良くなり、暖房や冷房の使用量を減らすことができます。
断熱等級は、無断熱の等級1~最高ランクの等級7まで、UA値によって7段階に分類されます。そのうち等級5~7は、2022年に「上位等級」として創設されました。
断熱等級が高い住まいは消費電力が少ないため、国は地球温暖化対策の取り組みとして2025年までにすべての新築戸建て住宅において断熱等級4以上を義務化することを目指しています。

一次エネルギー消費量とは?
一次エネルギー消費量の性能とは、建物や住宅が使用するエネルギーの量を評価する指標です。一次エネルギーは自然から取り出したエネルギーであり、例えば石炭や石油、天然ガスなどが含まれます。一次エネルギー消費量の性能が低いほど、建物がエネルギーを効率的に使用していることを示します。つまり、同じ快適さや機能を提供するために必要なエネルギー量が少なくなるのです。建物や住宅が低い一次エネルギー消費量の性能を持つと、環境への負荷を軽減できるだけでなく、エネルギー費用も節約できます。一次エネルギー消費量の性能評価は、持続可能な建築やエネルギー効率の向上に貢献します。
- 販売種別
- 分譲住宅
- 販売価格
- 3,370万円(税込) ※購入諸経費、借入経費等、諸経費が別途必要になります。
- 所在地
- 大分県中津市大字東浜490番12
- 交通
- 日豊本線 JR中津 約3.1km
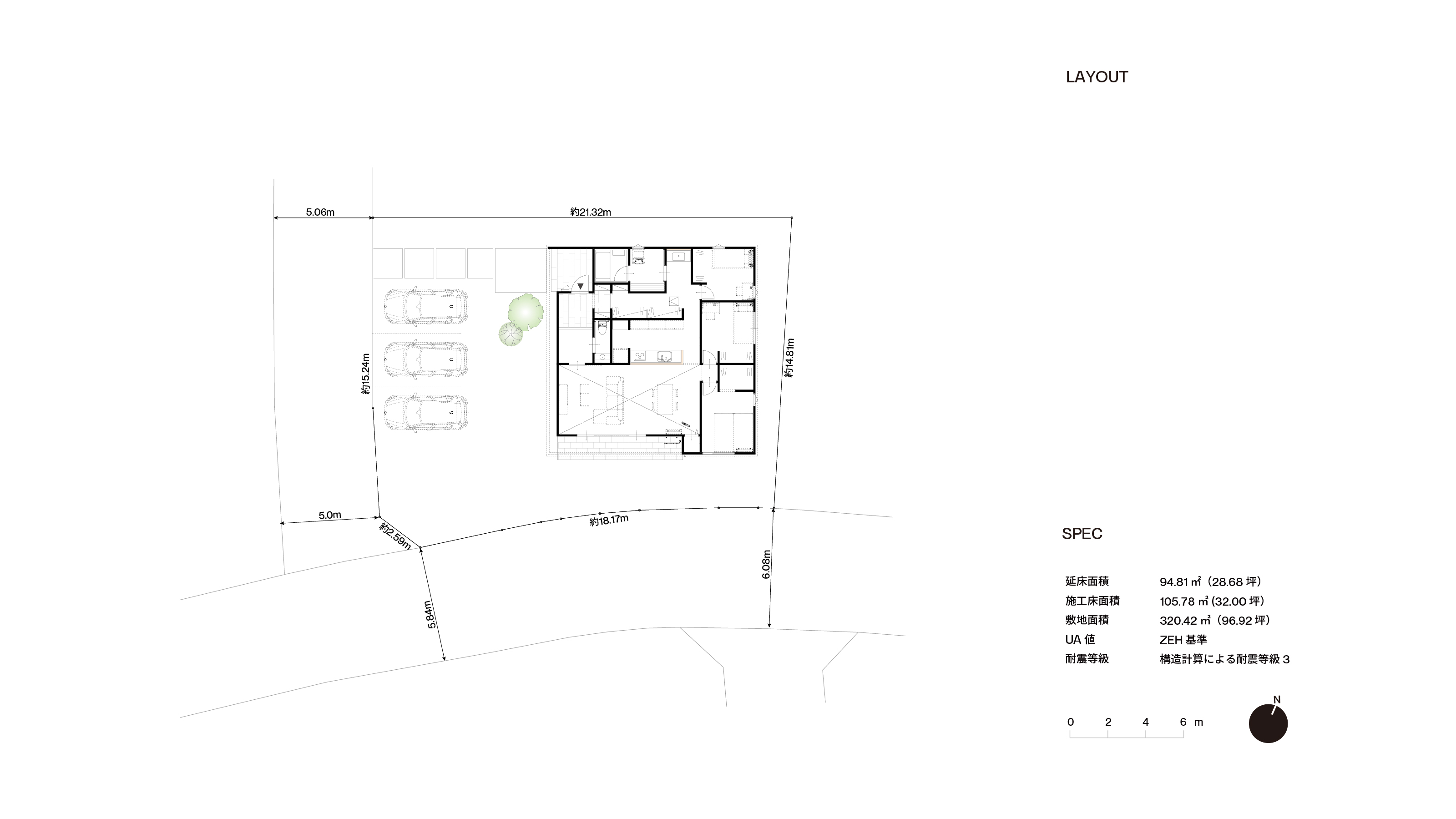
- 敷地面積
- 320.42㎡(96.92坪)
- 延床面積
- 94.81 ㎡(28.68坪)
- 地目
- 宅地
- 都市計画
- 非設定
- 用途地域
- 第1種住居地域
- 建ぺい率
- 60%
- 容積率
- 200%
- 道路
- 市道 幅員5.8m
- 構造
- ツーバイフォー工法
- 規模
- 地上1階
- 家族構成
- 夫婦+子ども2人 4人家族を想定
- 電気
- 九州電力
- 水道
- 市水道
- 排水
- 公共下水
- 設備
- システムキッチン(オール電化)、ユニットバス、洗面化粧台他
- 学校区
- 小楠小学校 約650m 徒歩約9分 / 中津中学校 約1.2km 徒歩約16分
- 建築確認番号
- 第R071047号
- 設計期間
- 2025年8月-2025年9月
- 施工期間
- 2025年11月-2026年3月
- 建物完成年月
- 2026年3月
- 施工
- FDM株式会社
- 取引態様
- 売主
- 次回情報更新日
- 2025年12月31日
Magazine
View All MagazinesEvent
View All Events-
完成邸見学会 / 由布市挾間町
この度、お施主様のご厚意により完成邸見学会を開催致します。 FDMの注文住宅から実際に見て・聞くことができる「暮らしのヒント」を、この機会に見学してみませんか? 是非お気軽にお問合せ下さい。
-
理想のマイホームを建てたい!FDMの「初めての家づくり相談会」開催
この度、マイホーム計画スタートの第一歩として、家づくりを考え始めたばかりの方にぴったりのイベントを開催致します。 何から始めてよいか全く分からない“家づくり”。FDMのスタッフに気軽に相談してみませんか??
-
開催中
大分市田尻 / 3棟同時!!完成邸見学会
この度、お施主様のご厚意により、2棟同時で完成邸見学会を開催致します。 FDMの注文住宅から実際に見て・聞くことができる「暮らしのヒント」を、この機会に見学してみませんか? 是非お気軽にお問合せ下さい。