FDMR#01 「間取らない家」
- Info
- Yakuin,Fukuoka, Jun,2017
- Tags
Story
ライフスタイルに合わせ間取りを変える自由な生活
福岡市薬院はファッションやアート等のカルチャーの感度が高いエリア。そんな街の一角にある築36年のRCマンションを再販物件のリノベーションとしてご提案しました。
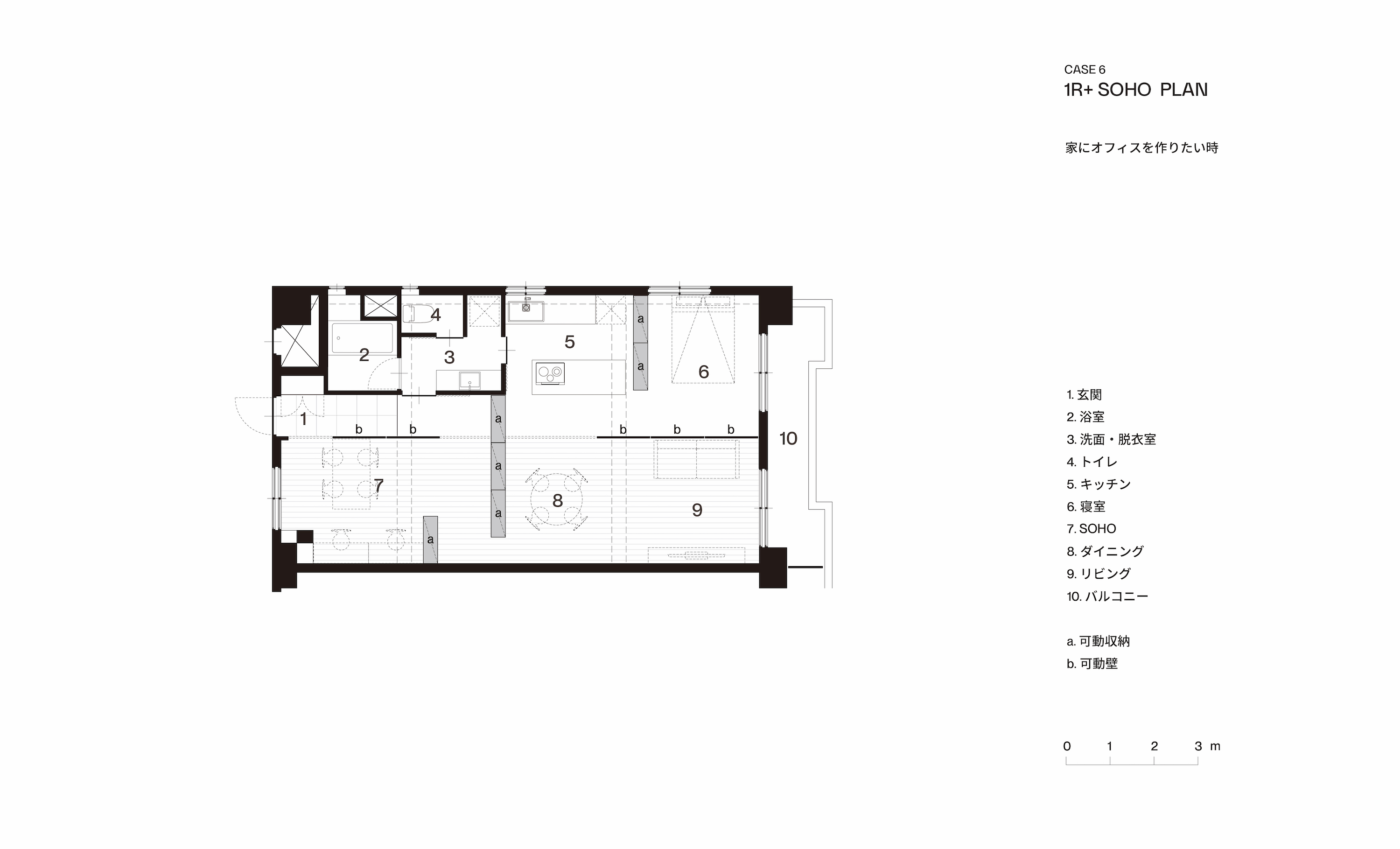
”ライフスタイルに合わせ間取りを変える自由な生活”をコンセプトに、日々新しい感覚を吸収して変化する薬院の街の様に、変化する暮らし方に対応できるギミックのある住空間をプランニング。可動壁と可動収納を操作することにより、ライフスタイルに応じた間取りを自身でつくることが可能になります。変化する間取りは”長く愛せる暮らし”を現実のものとするためにも有効で、空間全体をシンプルなデザインで統一し、温熱環境にも配慮した仕様としています。それから、形骸化した再販物件の分野に一石を投じることができればとの想いも込めています。
Infill Looks
好きな街で長く愛せる暮らしを実現する
移動させるのが難しい水廻り以外を、可動壁と可動収納をレゴブロックの様に自由に配置して部屋をつくるイメージ。それは、最初に決められてしまうnLDKの概念から開放されている住空間。表層は飽きのこない、ドライウォールの塗装壁、メープルの無垢材、リノリウムなどのシンプルでナチュラルな素材で仕上げている。水廻りも経年変化を愉しめるナチュラルな素材でミニマルにデザイン。キッチンは「RILNO」の完全オーダーメイド、浴室はハーフユニットを採用し、壁一面に張られた白いタイルはレイノーのアート作品を思わせる雰囲気に。高性能の断熱材や二重サッシにより温熱環境に配慮した快適に長く暮らすための仕様となっている。
*Blueprintで間取りのバリエーショをご覧いただけます。
Blueprint
- 所在地
- 福岡市中央区薬院
- 家族構成
- カップル、ファミリー
- 種別
- リノベーション(マンション区画)
- 竣工
- 2017年6月
- 費用
- 900万円
- 構造
- RC
- 築年数
- 32年
- 規模
- 延床面積
- 69.30㎡
- 設計期間
- 2017.02-2017.03
- 施工期間
- 2017.04-2017.06
Magazine
View All MagazinesEvent
View All Events-
完成邸見学会 / 豊前市今市
この度、お施主様のご厚意により、完成邸見学会を開催致します。 FDMの注文住宅から実際に見て・聞くことができる「暮らしのヒント」を、この機会に見学してみませんか? 是非お気軽にお問合せ下さい。
-
開催中
中津市東浜 / 分譲住宅全3棟GRAND OPEN!!
中津市東浜エリアにて建築中の分譲住宅全3棟がいよいよグランドオープン!! FDMの住宅のプロがご提案する「特別な一棟」を、この機会に是非ご覧ください。
-
開催中
理想のマイホームを建てたい!FDMの「初めての家づくり相談会」開催
この度、マイホーム計画スタートの第一歩として、家づくりを考え始めたばかりの方にぴったりのイベントを開催致します。 何から始めてよいか全く分からない“家づくり”。FDMのスタッフに気軽に相談してみませんか??