TBL
- Info
- meinohama,nishi,fukuoka, Jan.2023
- Tags
Story
狭小を通りに近いと再定義する
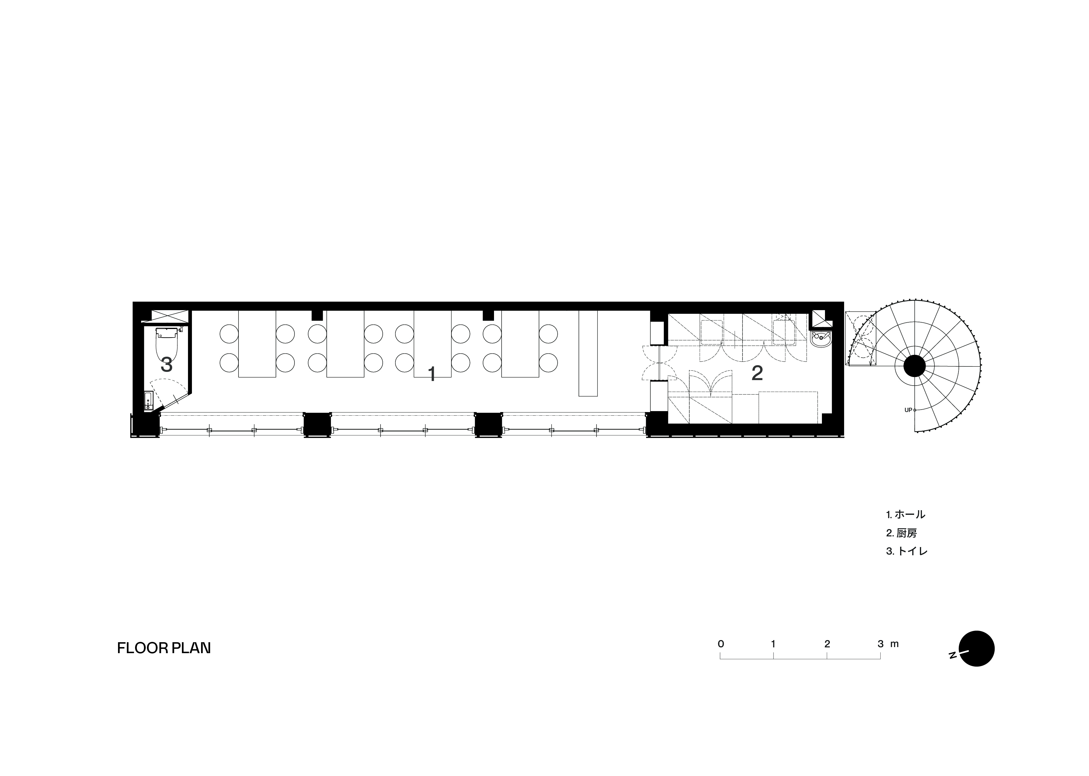
福岡市西区の地下鉄姪浜駅から徒歩5分、狭小地に建てられたテナントビル1階のスパイスカレーとタコスバーの店舗のプロジェクト。両手を広げると届きそうなそうな奥行きの細長いスペースながら、通り(地域)への距離が近いことを活かし、お店のアクティビティや親しみやすさを感じる空間を目指しました。アジアや中南米の活気のある路面屋台の雰囲気とFDMが得意とするモダンテイストが融合したショップデザインとなっています。
Skeleton Looks
店舗の活気とイメージを表現する
今回新築された建物も弊社で手掛けました。平面が12.8M×2.3Mの3階建て。黒を貴重としたシンプルな箱型の建物は、壁のような、細長い平面ゆえの面白いファサードとなっています。
1階部分は、壁面の杉板がファサードに変化を与え、オープンにできるガラスの引き戸が店内の活気を通りに伝えています。アクセントになっている白の暖簾は、外観をモノトーンに統一するとともに、カレーやタコスの固定概念をリセットしてもらおうという遊び心によるものです。
Infill Looks
簡素な素材で居心地の良さをつくりだす
店内は鉄骨の建物の構造やデッキプレートをそのままあらわしたスケルトンデザイン。ざっくりとしたラワン合板の棚板やテーブル、ボックスを挿入したようなトイレスペースが店内のアクセントになっています。テーブルの柱脚にはビニールハウスで使われるパイプを利用するなど、室内の仕上げはホームセンターで調達できる材料で仕上げています。簡素な素材ですが、ディテールをスッキリ納めることでデザイン性を高めています。あえてDIY的な印象にすることで親しみやすい居心地の良さにつながることを目指しています。
Blueprint
Magazine
View All MagazinesEvent
View All Events-
完成邸見学会 / 由布市挾間町
この度、お施主様のご厚意により完成邸見学会を開催致します。 FDMの注文住宅から実際に見て・聞くことができる「暮らしのヒント」を、この機会に見学してみませんか? 是非お気軽にお問合せ下さい。
-
理想のマイホームを建てたい!FDMの「初めての家づくり相談会」開催
この度、マイホーム計画スタートの第一歩として、家づくりを考え始めたばかりの方にぴったりのイベントを開催致します。 何から始めてよいか全く分からない“家づくり”。FDMのスタッフに気軽に相談してみませんか??
-
開催中
大分市田尻 / 3棟同時!!完成邸見学会
この度、お施主様のご厚意により、2棟同時で完成邸見学会を開催致します。 FDMの注文住宅から実際に見て・聞くことができる「暮らしのヒント」を、この機会に見学してみませんか? 是非お気軽にお問合せ下さい。