Yufuin HOTEL MODA
- Info
- Yufuin cho,Yufu city,Oita, Nov.2025
- Tags
Story
ほどけるホテルMODA。
Place to Loosen.
緊張から、役割から、都会の速度から。
ここにいる間だけは、そっとミュートしてほしい。
そんな思いから生まれた、心がふっとほどける宿です。
Skeleton Looks
HOTEL MODA
〒879-5102 大分県由布市湯布院町川上 442-22
Infill Looks
Entrance
Reception counter
Lounge
Restaurant
Infill Looks
Guest house
「ほどける」という、贅沢。
「ほどける」という感覚を、滞在のすべてに。
HOTEL MODAが届けたいのは、ほどける感覚。
全7室すべてに専用半露天風呂とテラスを設え、
滞在中は宿泊者専用ラウンジで、自由に飲食を楽しめます。
香り、音、触れるものすべてに意味を込めたアメニティと空間。
心と身体がゆるやかに緩んでいく、そんな時間をお届けします。
Gallery
建築そのものが、滞在体験になるホテル
由布岳の稜線、霧、光、風、土の匂い。
それらを遮らず、誇張せず、静かに受け止める器として、
木・塗り壁・石材という“時間を刻む素材”で構成する。
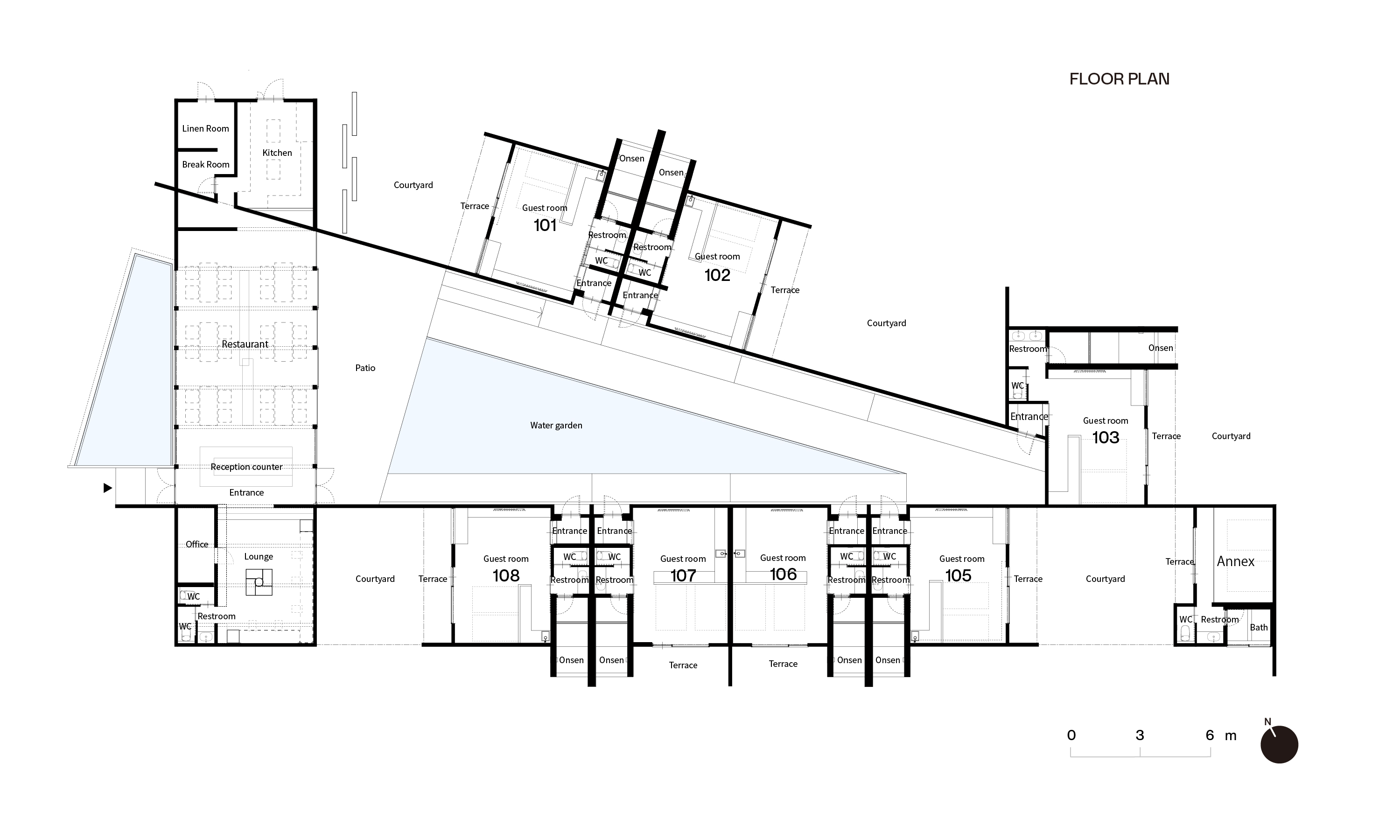
Blueprint
- 所在地
- 大分県湯布院町川上442-22
- 種別
- 宿泊施設
- 規模
- 木造1階建
- 敷地面積
- 5025.88㎡( 1,520.32坪)
- 建築面積
- 629.90㎡(190.54坪)
- 客室数
- 7室(専用半露天風呂付き)
- 客室面積
- 28.98㎡~ 63.76㎡
- その他
- ラウンジ完備、ご宿泊者専用の朝食・夕食サービスあり
- 建築・インテリアデザイン
- FDM Inc.
- 建築設計・工事監理
- FDM Inc.
- 建築施工
- FDM Inc.
- 竣工年月
- 2025年11月
Magazine
View All MagazinesEvent
View All Events-
開催中
中津市東浜 / 分譲住宅全3棟GRAND OPEN!!
中津市東浜エリアにて建築中の分譲住宅全3棟がいよいよグランドオープン!! FDMの住宅のプロがご提案する「特別な一棟」を、この機会に是非ご覧ください。
-
理想のマイホームを建てたい!FDMの「初めての家づくり相談会」開催
この度、マイホーム計画スタートの第一歩として、家づくりを考え始めたばかりの方にぴったりのイベントを開催致します。 何から始めてよいか全く分からない“家づくり”。FDMのスタッフに気軽に相談してみませんか??
-
開催中
完成邸見学会 / 豊後高田市玉津
この度、お施主様のご厚意により、完成邸見学会を開催致します。 FDMの注文住宅から実際に見て・聞くことができる「暮らしのヒント」を、この機会に見学してみませんか? 是非お気軽にお問合せ下さい。